- Ti trovi in:
- Home ›
- Immobili ›
- Vistrorio ›
- Vendita ›
- Casa semindipendente ›
- Casa semindipendente in vendita a Vistrorio
Casa semindipendente in vendita a Vistrorio
146 mq
4
2
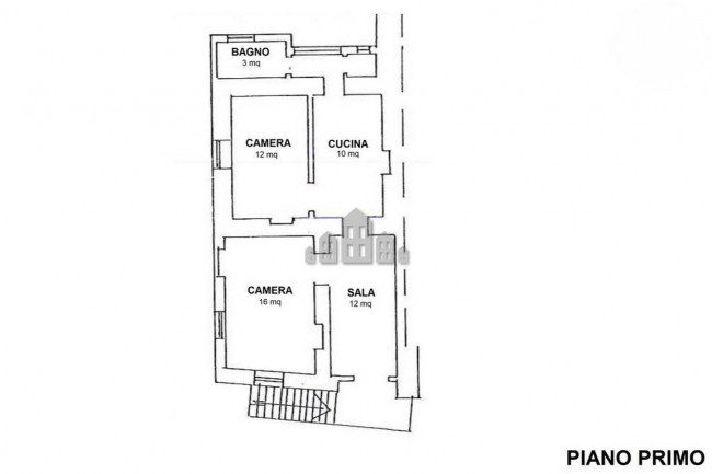
VALCHIUSELLA - Poco distante dal Municipio di Vistrorio, Comune situato nella zona della Bassa Valchiusella distante solo una quindicina di chilometri da Ivrea e dal casello autostradale. La casa è indipendente su tre lati, con ottima esposizione al sole ed è comodamente utilizzabile anche come bifamiliare, grazie agli accessi esterni e indipendenti ai due appartamenti, situati rispettivamente al piano primo e al piano secondo. Il piano terreno della casa è stato destinato ai locali accessori. Qui vi sono l'accogliente tavernetta affiancata da un comodo locale deposito che immette nella cantina. Esternamente vi è l'autorimessa che comunica con il deposito e con i due ripostigli. L'appartamento del piano primo ha ingresso sulla sala comunicante con la cucina. Sullo stesso livello vi sono le due camere e il bagno. Al piano secondo si viene accolti dal grande soggiorno con cucina a vista, sono sempre due le camere da letto e, oltre al bagno, completano il piano i due balconi. L'ultimo piano della casa è mansardato, unico ambiente caratterizzato dal camino centrale, ideale come salottino o zona lettura. La struttura della casa è tipica canavesana, come dimostrano alcuni soffitti a volta a vista in mattoni presenti. Sul retro della casa si estende il giardino privato pianeggiante, oltre ad una porzione boschiva.

Num. REA: TO-1259310
f.alfonzo@canavesecase.it
+390124666938
+393394619089
https://wa.me/+393394619089